Thiết kế nhà 2 tầng 3 phòng ngủ là xu hướng được ưa chuộng ở cả khu vực thành thị và nông thôn. Bởi kiểu kiến trúc này không chỉ đẹp mà còn có nhiều ưu điểm về công năng sử dụng và tiết kiệm chi phí. Trong bài viết này, Trường Sinh sẽ gửi đến bạn đọc những mẫu thiết kế đẹp và hot nhất hiện nay nhé!
Xu hướng thiết kế nhà 2 tầng 3 phòng ngủ
Nhà 2 tầng 3 phòng ngủ được nhiều gia đình lựa chọn nhờ những ưu điểm nổi bật, cụ thể như sau:
- Tận dụng tối đa diện tích đất: Đối với khu vực đô thị có diện tích đất hạn chế thì những ngôi nhà ống 2 tầng là sự lựa chọn tối ưu, đáp ứng đầy đủ các khu vực chức năng cần thiết.
- Tiết kiệm chi phí: So với việc xây nhà 3, 4 tầng thì nhà 2 tầng 3 phòng ngủ giúp gia chủ tiết kiệm nhiều chi phí mà vẫn đảm bảo công năng sử dụng cho các thành viên. Mẫu thiết kế này phù hợp với các gia đình trẻ, có từ 4 - 5 người.
- Đa dạng thiết kế: Với mẫu nhà 2 tầng 3 phòng ngủ, bạn có thể lựa chọn nhiều kiểu phong cách thiết kế khác nhau như hiện đại, đơn giản hoặc tân cổ điển đều rất đẹp. Ngoài ra, kiểu nhà này có thể xây thành nhà ống, nhà phố hoặc biệt thự,...
- Thời gian thi công nhanh chóng: Hầu hết các mẫu thiết kế nhà 2 tầng 3 phòng ngủ có thời gian xây dựng tương đối ngắn,không mất nhiều thời gian hoàn thiện. Đây là một trong các ưu điểm nổi bật của mẫu nhà này.
Nhà 2 tầng 3 phòng ngủ có thể tận dụng tối đa diện tích đất
Phương án thiết kế nhà 2 tầng 3 phòng ngủ
Với thiết kế nhà 2 tầng 3 phòng ngủ, ta có nhiều cách bố trí các phòng chức năng khác nhau. Dưới đây là một vài gợi ý mà Trường Sinh gửi đến bạn đọc:
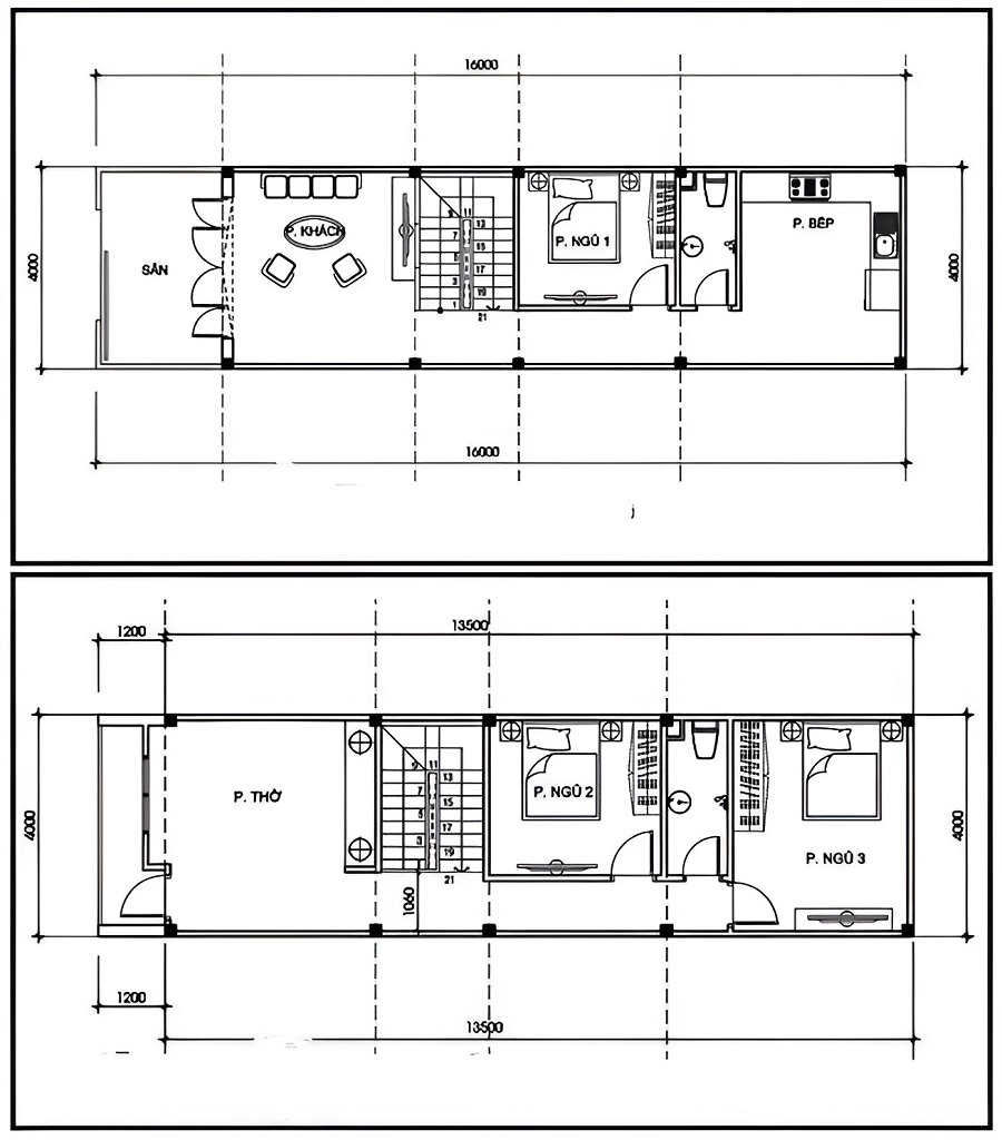
Phương án thiết kế số 1
Phương án đầu tiên mà Trường Sinh muốn chia sẻ là mẫu nhà ống 2 tầng 3 phòng ngủ. Mặt bằng tầng 1 gồm có 1 phòng khách + 1 phòng ngủ + 1 phòng bếp (phòng ăn) + 1 nhà WC. Phía trước là một khoảng sân nhỏ để làm nơi để xe, phơi đồ hoặc trang trí tiểu cảnh.
Mặt bằng tầng 2 gồm có 1 phòng thờ + 2 phòng ngủ + 1 nhà vệ sinh. Phòng thờ sẽ bố trí tách biệt với các không gian còn lại để tạo sự trang nghiêm, yên tĩnh. Hai phòng ngủ được bố trí cạnh nhau và ngăn cách bởi nhà vệ sinh để thuận tiện khi di chuyển.
Phương án thiết kế nhà 2 tầng 3 phòng ngủ tối ưu
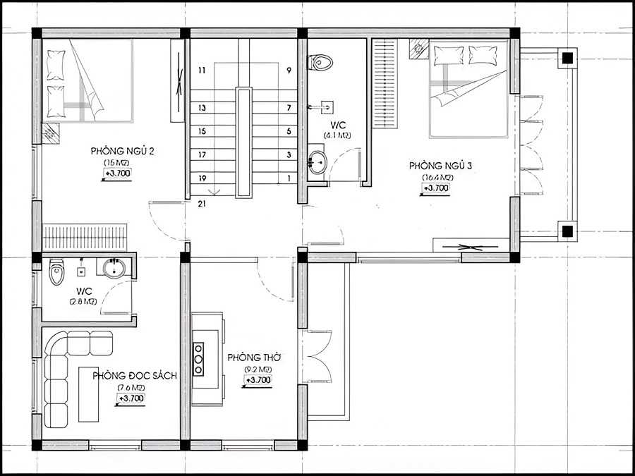
Phương án thiết kế số 2
Phương án số là bản vẽ thiết kế nhà 2 tầng 3 phòng dạng chữ L. Giống như phương án 1, khu vực tầng 1 bao gồm các phòng chức năng như phòng khách, phòng khách, phòng ngủ bố mẹ và 1 nhà vệ sinh. WC được đặt ở cuối phòng hoặc dưới gầm cầu thang để tối ưu diện tích sử dụng. Phần hông nhà có thể tận dụng làm gara hoặc sân chơi cho trẻ.
Khu vực lầu 2 là các phòng chức năng như 2 phòng ngủ, nhà vệ sinh, phòng đọc sách và phòng thờ. Phòng thờ cũng được thiết kế tách biệt với các khu vực khác cho hợp phong thủy. Nhà vệ sinh có thể thiết kế khép kín trong phòng ngủ để tạo sự riêng tư.
Phương án bản vẽ thiết kế nhà 2 tầng 3 phòng dạng chữ L
Các mẫu thiết kế nhà 2 tầng 3 phòng ngủ đẹp nhất 2026
Dưới đây là nhữg mẫu thiết kế nhà 2 tầng 3 phòng ngủ đẹp, mang đến cho khách hàng nhiều lựa chọn đa dạng, từ phong cách hiện đại tối giản đến tân cổ điển sang trọng, phù hợp với nhiều nhu cầu và gu thẩm mỹ khác nhau.
Mẫu nhà ống 2 tầng 3 phòng ngủ 4x15m hiện đại, đơn giản
Ngôi nhà được thiết kế theo phong cách hiện đại, đơn giản nên không tốn kém nhiều chi phí. Sơn ngoại thất sử dụng những gam màu nhẹ nhàng như trắng, kem kết hợp với ánh đèn vàng và các gam màu như nâu, xám,... Để tăng thêm sự sang trọng cho ngôi nhà, bạn có thể kết hợp các vật liệu như kính, đá ong xám, conwood,...
Nội thất cũng được thiết kế theo hơi hướng hiện đại, tối giản để tối ưu hóa chi phí mà vẫn đáp ứng nhu cầu sử dụng. Mỗi vật dụng nên lựa chọn thật kỹ càng, có màu sắc thống nhất với màu sơn tường và màu gạch.
Mẫu nhà ống 2 tầng 3 phòng ngủ 4x15m hiện đại, đơn giản
Thiết kế nhà 2 tầng 3 phòng ngủ 60m2
Ngôi nhà được thiết kế đơn giản nhưng vẫn thể hiện sự trẻ trung, hiện đại. Các phòng được bố trí khoa học, hợp lý và thông thoáng với nhau. Các chậu cây xanh được dùng để trang trí quanh ban công tầng 2 và tầng 1 để tạo điểm nhấn cho ngôi nhà.
Dưới đây là một vài mẫu thiết kế nhà 2 tầng 3 phòng ngủ 60m2 đẹp mà bạn đọc có thể tham khảo:
Thiết kế nhà 2 tầng 3 phòng ngủ 60m2 gam màu trắng tuyệt đẹp

Thiết kế nhà 2 tầng 3 phòng ngủ 60m2 cuốn hút, tinh tế

Thiết kế nhà 2 tầng 3 phòng ngủ 60m2 gây ấn tượng với đường nét hiện đại
Thiết kế nhà 2 tầng 3 phòng ngủ 80m2
Mẫu thiết kế nhà 2 tầng 3 phòng ngủ 80m2 phong cách hiện đại là lựa chọn tuyệt vời cho những gia đình có từ 4 - 5 thành viên và không dư dả nhiều về tài chính. Nội thất phòng khách được thiết kế đơn giản, tạo sự gần gũi và rộng rãi cho khu vực này. Đồ nội thất cũng ưu tiên các món đồ có màu sắc nhã nhặn để mở rộng không gian.
Khu vực phòng ngủ cần sự ấm cúng, thư giãn nên bạn có thể chọn nội thất có tone màu ấm như trắng, be, nâu,... Vật dụng trong phòng nên cố gắng tối giản nhất và sắp xếp gọn gàng.
Thiết kế nhà 2 tầng 3 phòng ngủ 80m2
Bên cạnh đó, mẫu thiết kế nhà 2 tầng 3 phòng ngủ tân cổ điển cũng là lựa chọn của nhiều gia đình hiện nay. Thiết kế tân cổ điển mang lại cho gia đình bạn không gian sống sang trọng, thời thượng với những đường nét hoa văn tinh tế. Tuy nhiên, so với phong cách hiện đại thì phong cách tân cổ điển thường tốn kém nhiều chi phí xây dựng hơn.
Thiết kế nhà 2 tầng 3 phòng ngủ 100m2
Với diện tích lên đến 100m2, chắc chắn gia đình bạn sẽ có không gian sống hiện đại, rộng rãi và đầy đủ tiện nghi. Ví dụ như mẫu thiết kế nhà 2 tầng 3 phòng ngủ 100m2 mái Thái dưới đây là một gợi ý tuyệt vời dành cho bạn.
Thiết kế nhà mái Thái không chỉ mang đến sự sang trọng, tinh tế mà còn rất phù hợp với điều kiện khí hậu của Việt Nam, giúp bảo vệ tối ưu cho căn nhà của bạn.
Thiết kế nhà 2 tầng 3 phòng ngủ 100m2 rộng rãi
Bên cạnh đó, mẫu nhà 2 tầng 3 phòng ngủ mái bằng cũng rất được ưa chuộng. Thiết kế mái bằng mang lại cho gia đình bạn không gian sống hiện đại, trẻ trung và có thể tận dụng để phục vụ cho một số nhu cầu khác như làm sân thượng uống trà,...
Mẫu nhà 2 tầng 3 phòng ngủ mái bằng đẹp
Thiết kế nhà 2 tầng 3 phòng ngủ có 1 tum
Thiết kế tầng tum giúp gia đình bạn có thêm không gian sử dụng. Tại đây, bạn có thể bố trí nhà kho, phòng thờ, phòng ngủ, sân thượng, nơi trồng tiểu cảnh,... tùy theo sở thích.
Phong cách thiết kế nhà 2 tầng 3 phòng ngủ 1 tum hiện đại vẫn tiếp tục là xu hướng trong năm 2025. Phối cảnh cây xanh khiến ngôi nhà trở nên thông thoáng và thoáng mát hơn.
Thiết kế nhà 2 tầng 3 phòng ngủ có 1 tum thư giãn

Thiết kế nhà 2 tầng 3 phòng ngủ 1 tum thoáng mát, tiện nghi

Thiết kế nhà 2 tầng 3 phòng ngủ 1 tum thu hút người nhìn
Nhà 2 tầng 3 phòng ngủ kiến trúc độc đáo, ấn tượng
Đây là mẫu thiết kế lý tưởng dành cho các cặp vợ chồng trẻ. Màu sắc và đường nét kiến trúc tạo bạo khiến ngôi nhà trở nên nổi bật hơn. Hệ thống cửa, các đường viền chân tường,... được phủ sơn xanh thẳm giúp tạo chiều sâu cho ngôi nhà.
Bên cạnh đó, mẫu nhà ống 2 tầng 3 phòng ngủ phong cách Địa Trung Hải cũng rất nổi bật. Thiết kế mái vòm được sử dụng khéo léo khiến ngôi nhà trông đặc biệt và thu hút hơn. Ngoài ra, việc sử dụng gạch ốp tường khiến ngôi nhà toát lên vẻ hoài cổ, cổ điển.
Gam màu lạnh được lựa chọn là tone màu chủ đạo cho công trình. Điểm nhấn đắt giá cho ngôi nhà nằm ở bộ vòm mềm mại và thanh lịch.

Nhà 2 tầng 3 phòng ngủ kiến trúc độc đáo
Một số lưu ý khi xây nhà 2 tầng 3 phòng ngủ
Trước khi bắt tay vào xây dựng, việc nắm rõ những lưu ý quan trọng sẽ giúp quá trình thi công nhà 2 tầng 3 phòng ngủ diễn ra thuận lợi, hạn chế phát sinh chi phí và đảm bảo chất lượng công trình.
- Xác định rõ từng khu vực và công năng sử dụng để đảm bảo thẩm mỹ cũng như tạo sự thoải mái, tiện nghi cho các thành viên trong gia đình.
- Thiết kế giếng trời giúp gió và ánh sáng tự nhiên lan tỏa từ trên cao xuống dưới nhà. Điều này sẽ giúp ngôi nhà thông thoáng và sáng sủa hơn.
- Lựa chọn vật liệu thi công phù hợp với khả năng đầu tư nhưng vẫn đảm bảo chất lượng và độ bền lâu dài.
- Lựa chọn đơn vị xây nhà chuyên nghiệp, uy tín, báo giá minh bạch, có cung cấp hợp đồng và chính sách bảo hành rõ ràng.
Hãy lựa chọn đơn vị xây nhà uy tín, chất lượng
Trên đây là bài viết tổng hợp các mẫu thiết kế nhà 2 tầng 3 phòng ngủ đẹp, ấn tượng. Hy vọng sẽ giúp bạn đọc có thêm nhiều ý tưởng thiết kế cho tổ ấm của mình. Liên hệ ngay đến Trường Sinh theo số hotline 0984.601.683 nếu bạn cần tư vấn và hỗ trợ xây nhà nhé!
Bình luận (0)